忘记密码?

账号密码登陆
手机验证码快捷登录
没有帐号?
注册账号
《绿城置换用户使用协议》
已有账号?
绿城置换官网欢迎您!
VR 图片
西溪.融创河滨之城雨澜轩
关注
7000 元/月
3 室 2 厅 0 卫 89平米

中楼层(共18层) 精装 2014年建

房源编号 lchhbz11707170960
房源核验统一编码 备案号
所在区域 西湖西溪
看房时间 请联系经纪人
倪毛夹 绿城置换
我是本房源跟单人,业主关系由我维护
13093715954 在线问 通话受虚拟化隐私保护,请放心拨打

服务承诺: 真实房源 免费看房 全程陪护

房源基本信息
  • 小区名称

    融创河滨之城雨澜轩
  • 房源户型

    3室2厅0卫
  • 房源面积

    89平方米
  • 房源朝向

  • 装修程度

    精装
  • 房源类型

    住宅

房源配套设施

  • 灶具

  • 天然气

  • 宽带

  • 衣柜

  • 床头柜

  • 餐桌餐椅

  • 沙发

  • 空调

  • 冰箱

  • 电视

  • 电视柜

  • 洗衣机

  • 热水器

  • 底下车库

注:房源介绍:“房源户型,装修程度,房源面积,建房年代,房源朝向,参考首付,房源类型”仅供参考,租房时请以实际产证为准
核心卖点
此房源照片
客厅
客厅
主卧
主卧
主卧
主卧
次卧
次卧
厨房
厨房
阳台
阳台
阳台
阳台
玄关
玄关
餐厅
餐厅
餐厅
餐厅
卫生间
卫生间
卫生间
卫生间
卫生间
卫生间
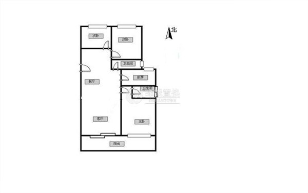
户型介绍
item.title    融创河滨之城雨澜轩小区租房-户型图    注:户型图、照片,存在绘制误差,仅供参考,实际户型图、照片以实地勘察为准。 此房源已支持查看三维立体户型 立即看房
小区概况

融创河滨之城雨澜轩

小区在租房源55

  • 融创中国控股有限公司
  • 17
  • 融创物业服务集团有限公司杭州分公司
  • 西溪
  • 查看小区详情
周边配套
特色服务

真实房源 找房便捷

绿城置换为您提供真实优质房源信息:房源真实存在、真实产权、真实委托、真实价格、真实图片,囊括多种维度的找房功能,根据找房需求准确推荐优质房源,PC官网与APP会员信息同步,随时随地提供便捷的找房服务。

资金监管 安全保障

交易资金打入监管银行保证金账户,买方、卖房、银行及经纪服务公司四方共同监管,保证交易过程中资金安全。

高效售后 专业陪同

签约完成之后产权过户、按揭办理、物业交割等售后环节经纪服务人员仍将提供高效、专业的服务,并详述流程及所需材料,全程陪同完成办理。

流程透明 交易安心

交易流程可在会员中心查看,知晓每一步流程办理时间及办理人员,确保每一次交易省心安心。
  • 关于我们
  • 联系我们
  • 加入我们
  • 投诉建议
  • 绿城置换 在线人工服务9:00-18:30 ×